VEPSTONE ZX16
KONTAKT
+372 5088 635
info@vepstone.ee
VIIKING EHITUSPARTNER OÜ
Reg.nr. 11309947
KM.nr. EE101109910
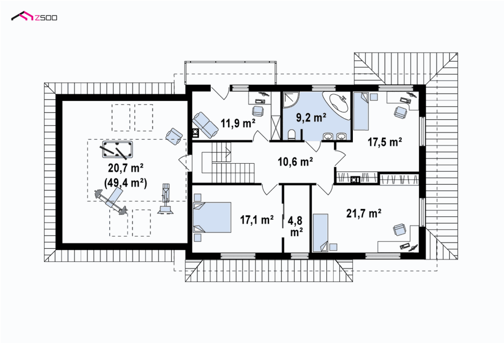
Skeem
Omadused
Zx16
- Kasulik pind / netopind 216,0 / 296,6 m²
- Suletud brutopindala 185,3 m²
- Garaaži pindala 51,9 m²
- Kubatuur 736,29 m³
- Hoone kõrgus 9,62 m
- Katusekalle 30°
- Katuse pindala 291,6 m²
- Minimaalne krundi suurus 27,88 x 18,48 m